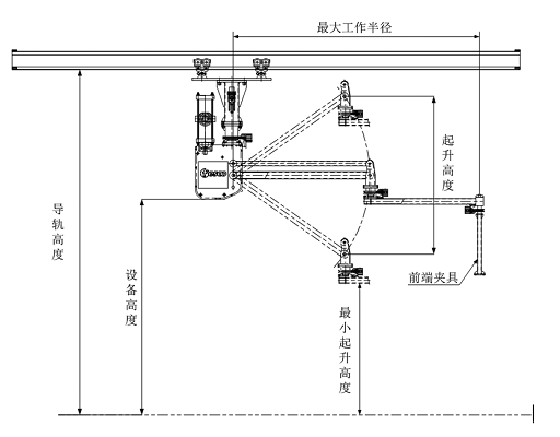
軌道移動式:將鋁合金導軌懸掛于廠房支撐梁或者現場安裝的立柱梁上,助力機械手通過滑動小車安裝于導軌上。控制滑動小車移動的方式可分為電控、氣控和手動。根據現場的工作環境以及安裝空間,導軌移動式助力機械手可在空間上實現前后、左右的多方位長距離或短距離的行走,可通過導軌上的限位及緩沖實現位置極點的控制。其優點在于只占用廠房已有的上部支撐梁實現與地面無干涉的工作。

產品參數

說明:
1. HTS-200以上規格的地面移動式設備需要叉車移動。
2. 工作現場需要提供0.5-0.7Mpa的氣源壓力。
產品特性
?適用于半徑大,作業距離遠的環境;
?本產品懸掛在鋁軌道、鋼軌道處,可自由移動;
?本產品選用鋁軌道時可根據現場需求設計成手動或者自動方式移動;
?針對現場比較重的產品,可根據現場設計電動方式引動;
?空載中具有懸浮功能;
?純氣動控制方式,無需電源;
?具有自動檢測重量功能;
?是一種三維空間的曲線運動;
?工作人員只需提供1 /100的力;
?控制系統具有自動鎖緊功能;
?作業的靈活性與精密性,會提高人工3倍的工作效率。